『腰下のオーバーホール』 KAWASAKIバリオスのメンテナンス


腰下のオーバーホール

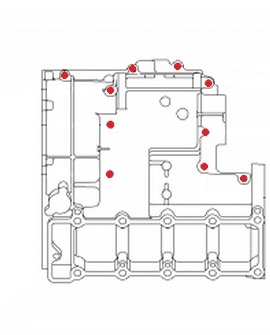
空けたクランクケース


○ 走行 17万数千km。
劣化して伸びたカムチェーンを換えるべくクランクケースを分割しました。

○ 走行 22万数千km。
マニュアル、トルクレンチを手に入れたので 腰下OHの肝、メタルの交換 を行う。

走行時にミラーが振動して後ろの車がブレブレになる現象もこれで直るはず。


※ 整備はサービスマニュアルに頼らずやっているので参考程度にご覧ください。




- 広告 -

インデックス

1. クランクケースの分解
2. 消耗品の交換
   2-1. オイルシール
   2-2. カムチェーン
   2-3. コンロッドメタル(子メタル)
   2-4. コンロッドボルト、ナットは…
   2-5. メインメタル(親メタル)
3. ついでにトランスミッション観察
4. クランクケース組み立て
5. メタル交換後の変化



1. クランクケースの分解

クランクケースを車体から外し、事前に左のエンジンカバー、 右のエンジンカバーは外しました。 スターターモーターも外します。ボルト外して引っ張るだけ。


1-1. ボルト外し

クランクケース上部ボルト
クランクケース上部ボルト 図


分割のためにまずは 上部のボルトを外します。10mmレンチで。 固いから柄の長いレンチで。



クランクケース下部ボルト
クランクケース下部ボルト 図


今度はひっくり返して。 同様に。



ボルト管理


外したボルトは場所によって長さがまちまち、バラバラにすると厄介。

こんな感じでダンボールに場所がわかるように挿しておくと管理できます。



1-2. クランクケース分割

プライポイントをバールで


オイルフィルターを付けて、バールで ”てこ ” ればガバッと開きます。

ちょっと訳ありでオイルフィルターが凹んでますが普通、あんな事にはなりません。


クランクケースを開けた


ノックピンがあって簡単にご開帳とは行きませんが、おりゃ、おりゃと均等に攻めるとパカッと。

ブローバイガス排出ホースが邪魔にならないよう、 上下をひっくり返した状態で開けます。



クランクケースの中身


すごく複雑そうに見えるけどなんてことない。この程度の部品数でしかない。

クランク、トランスミッションも置いてあるだけ、だから持ち上げて外すだけです。

トランスミッションなんかは実際はもっとバラバラにできるけど、問題なければやらなくても。



2. 消耗品の交換

2-1. オイルシール

クランクケースの中身 ゴム系の部品


トランスミッションアウトプットのオイルシールを交換。

引っ張って抜き取り、新しいものをはめるだけ。これはクランクケースを開けなくても交換できるらしい。


クランクケースの中身 ゴム系の部品 2


クランクケース左側のギアチェンジレバーシャフトのオイルシールを交換。

これは圧入されてます。 内掛け式のベアリングプーラーで外せます。

新品は適当なものをあてがって金槌でトントンすれば圧入できます。



2-2. カムチェーン

DIDのカムチェーン


走りに関わるカムチェーンはぜひ交換しよう。

4,000円ぐらいかな? 高くはないが 純正で入手すると割高になる。

DIDの製品を狙おう。 (SCR-0404 SDHの2×3-106L)


DIDのカムチェーン 2


しかしネットで買おうにも販売している店が日本では皆無に近い。
日本で作って世界中に輸出しているようだが、日本人が手に入れるのになぜ輸入せにゃならんの...


交換はチェーンを元の位置に引っ掛けるだけ。

気を付けるべきはチェーンを引っ掛けるのを忘れたままクランクケースを組み立てないこと。 またバラすの面倒だったぞ。



2-3. コンロッドメタル (子メタル)

コンロッドメタル
コンロッドメタルこじる場所


コンロッドはナットを外し、ちょっときついが大端部キャップを外すとクランクから外せる。

軸受け部品、コンロッドメタルは矢印の辺りをこじれば外せる。メタルは1~4番、各2個 = 全8個。

非常にシビアな部品で 1/1000mm単位で3種類のメタルが用意されている。
メタルはクリアランスに応じて適切なものを選び、交換する必要がある。



"○マークあり or なし" の組み合わせで選ぶべきメタルが決まる。


クランクピン径マーク, コンロッド大端部径マーク


・コンロッドのアルファベット周囲に○マーク → ありなら大端部ボア 広い。 なしなら狭い。
・クランクに○マーク(各マークが各ピンに対応) → ありならピン太い。なしなら細い。


コンロッドのマーククランクピンのマークメタルのカラー(種類)
なしありブラウン
なしなしブラック
ありありブラック
ありなしブルー

私の場合、1~4番のコンロッド、クランクすべて なし・なし。 だから8個全部ブラック。 脱脂して装着。


ちなみに規定クリアランスは以下のとおり。

規定: 0.013 ~ 0.039mm
限界: 0.070mm


クリアランス測定はプラスチゲージで。 規定トルクの8割ほどで締め付け測定する。
しかし、よくあるアメリカ製プラスチゲージの測定下限が0.025mm。 日本ではまず見かけないイギリス製のプラスチゲージPL-Xでも下限0.018mm。 測定はきついね。



2-4. コンロッドボルト、ナットは…

コンロッドボルトを外す

コンロッドを締め付けるコンロッドボルト。きついので金槌で叩いて外そう。



コンロッドボルト・ナット締め付けトルク
新品新品でコンロッドに付属されたもの9.8N・m + 120°±12°
新品新品でコンロッドに付属されたものでない12N・m + 150°±30°
中古新品12N・m + 150°±30°

この コンロッドボルトは締め付けると伸長するようになっており、「再使用はダメ」 とマニュアルに書いてある。

ナットも新品でないといけないのだが Ninja ZX-10Rの場合は、ボルトは必ず新品、でもナットは再使用OKという事になっている。

何だかんだバリオスも再使用できちゃうんじゃない? という事で再使用してみる。



コンロッドナットを締める

コンロッド装着の手順。

1. コンロッドボルトは油分をパーツクリーナーで除去。 水気も完全除去。

2. コンロッドのメタル表面をエンジンオイルで潤滑してからクランクに装着。

3. ナットは座面、ネジ部に少量のエンジンオイルを塗布、装着。

4. ナットをまず12N・mで締め、その後 170°弱 回して締めた。
  (ボルトの角が角度の目安になる。分度器はいらない。マーカーでチェックしてから回そう。)



2-5. メインメタル (親メタル)

メインメタル
メインメタル こじる場所


クランクケースを開け、クランクシャフトを外せば軸受け部品、メインメタルが見える。

矢印の辺りをこじればメインメタルは外せる。メタルは5箇所×ケース上下 = 全10個。

非常にシビアな部品で 1/1000mm単位で3種類のメタルが用意されている。
メタルはクリアランスに応じて適切なものを選び、交換する必要がある。


"○マークあり or なし"、 "1マークあり or なし" の組み合わせで選ぶべきメタルが決まる。


メインメタルボア径マーク、メインジャーナル径マーク


・クランクケース(アッパー)の前方のマスに○マーク → ありならボア 狭い。 なしなら広い。
・クランクに1マーク → ありならジャーナル太い。なしなら細い。
 (各マークが各ボア、ジャーナルに対応)


クランクケースのボアマークメインジャーナルのマークメタルのカラー(種類)
ありありブラック
なしありブルー
ありなしブルー
なしなしイエロー

私の場合、クランクケースの各マス、クランクの各部にマークは皆無。
5箇所のボア、ジャーナルは全部なし・なし。 だから10個全部イエロー。 脱脂して装着。


ちなみに規定クリアランスは以下のとおり。

規定: 0.006 ~ 0.030mm
限界: 0.060mm


クリアランス測定はプラスチゲージで。
よくあるアメリカ製プラスチゲージの測定下限が0.025mm。 日本ではまず見かけないイギリス製のプラスチゲージPL-Xでも下限0.018mm。 測定はきびしいね。



3. ついでにトランスミッション観察

3-1. 変速の仕組み

複雑そうに見えるトランスミッション


トランスミッションは2つ。
クランクと噛みあっている「インプット」、フロントスプロケの付いてる「アウトプット」。

それぞれの複数のギアが噛み合って、複雑な動力の伝え方をしているかと思いきや実は単純。

動力を伝えるギアは、インプットのいずれか1個 と アウトプットのいずれか1個。 それ以外のギアは軸が回っても空回り。

「空回りするギア」は、「軸と一緒に回るギア」と ”合体”することで 軸と一緒に回るギア に変身する。

この仕組みによってその時々で、動力を伝えるギア、伝えないギアを変えてギア比を変えています。


チェンジドラムとシフトフォーク


筒状のものが 「チェンジドラム」。 表面に溝が彫ってあって、シフトチェンジレバーを動かすと回転する。

溝にはまっていて右へ左へ動くのが 「シフトフォーク」。 こいつがギアを右へ左へと移動させて、(上で説明した)ギア同士の”合体”を実現させる。


バネはずす


いろいろ観察するなら、丸部分のバネをペンチで外し、手でレバーを上へ下へと動せばドラムが回ってギアの動きを追うことが出来る。



3-2. 停止状態では2速に上がらない仕組み

トランスミッション アウトプット2速


トランスミッション アウトプットの右から2番目のギアはそのままでは横に移動しません。

カワサキの、”停止状態ではNから2速に上げられない仕組み” がこれ。
バイクが走り出して中の剛球が回転の遠心力で移動すると2速に上げられるようになります。

写真のように軸がブレないように左右にぐるぐる振り回せば遠心力が働き、移動させる事が出来ます。



4. クランクケース組み立て

凹凸をあわせてトランスミッションを乗せる


組み立てます。
クランクケースのアッパー側(上半分)をひっくり返してそこに部品を乗せていきます。

写真のとおり、トランスミッションには位置決め用の凹凸があるので合わせて組みます。

クランクは必ず軸受けにオイルを差して。


トランスミッションを乗せ終えた


カムチェーン、 ブローバイガス排出ホースの付け忘れに注意! 慌てると忘れます…。


Nでクランクケースを組む


ギアはNで組むのが良いだろうか? シフトドラムの点がNの場所。


シリコンガスケット


次にクランクケースの合わせ面からオイルが滲み出さないようにシリコンガスケットを塗って行きます。


シリコンガスケットを塗っていく


ケース合わせ面にシリコンガスケットをちょん、ちょん、ちょん。 そのあと指で薄く塗り伸ばしました。

付け過ぎると接着剤のようになって開ける時に苦労するので注意。 かと言って 写真の状態は少なすぎ。オイル滲みました。

メインメタルの 矢印のところはオイルの通り道。 ガスケットで塞がないように注意。


シリコンガスケットを塗ったらふた閉め



シフトフォークがトランスミッションのはまるべき所にしっかりはまるように位置に気をつけて閉めていきます。

ま、位置がズレていれば閉まらないと思いますので組み間違えは無いでしょう。



クランクケース組み終え


こんな感じでぴったり閉まりました。


クランクの軸受け部分の締め付け


締め付け、メインメタルのところは締め過ぎると軸の周りが渋くなります。
それだけならまだしもクリアランスが狭くなりすぎると 最悪、焼き付くことに。

ここの締め付けは 20N・m。 クランクケースに書いてある番号順に締め。8番だけ中強度ねじロック。

その他のボルトは12N・m。ひっくり返してアッパー側も12N・m、太い一本だけ20N・m。



5. メタル交換後の変化

メタル交換後のバリオス


少なくとも22万kmメタル無交換のエンジンを降ろし、
マニュアルに基づいてメタル交換、規定トルクで締めた今回の予備エンジンに載せ換え。


音が違う。

今までは微細な振動が "低音" となって悪くない存在感を放っていたが、それが無くなり高音が混じるようになった。

今まではブゥーーン、交換後はビュゥーーン。

アイドリング音も変化。 ブレによる低音が無くなり、よどみなく回る4気筒サウンド。


回転がスムーズ。

高回転での振動が軽減され快適。 スピードを出しても今までより余裕を感じる。



広告

関連:
クランクケースの外し方
中国製 AHL 激安コンロッドメタルの実力

広告


広告


広告


↑ PAGE TOP

フッター